2x1 Swan River Daisy
New Customised Build

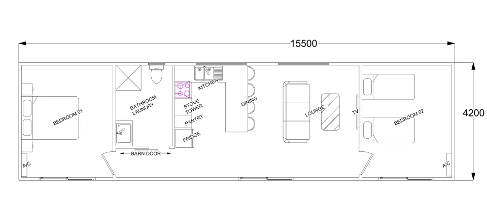
2x1 Swan River Daisy Ancillary Dwelling

The Swan River Daisy is our entry-level two-bedroom, one-bathroom design for an ancillary dwelling, based on accommodation purposes with generous-sized bedrooms for twin share or a King bed in the master bedroom.

The bedrooms are divided by the living space, a one-sided galley kitchen, corner or U-shaped kitchen layout is possible with this design, with a simple vanity and basin solution included.

This design gives your family or friends ample space and privacy for a long-term stay.

Features

square_meters
65.1 square meters
bedroom
2 Bedroom
bathroom
1 Bathroom
features

 Swan River Daisy - Simple kitchen layout render  Swan River Daisy Simple dining and living space  Swan River Daisy twi-light render